ERSTBEZUG! Modernes Wohnen- zentral, hochwertig und BARRIEREFREI in zentraler Lage in Marbach a. N.

Objekt-Nr. 2854Ma2_GB_Haus_Verk – Wohnung zum Kauf in Marbach am Neckar


Ansprechpartner

Gerhard Biesinger

Telefon: 00497143811269
Telefax: 07042 12152

biesinger@immobilienservice-maier.com

Kontakt aufnehmen

Eckdaten

Kaufpreis 799.000 €
Hausgeld 330 €
Adresse 71672 Marbach am Neckar
Wohnfläche ca. 124 m²
Nutzfläche ca. 11 m²

Beschreibung

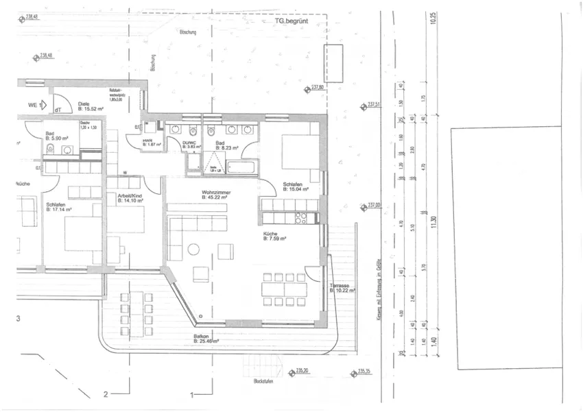
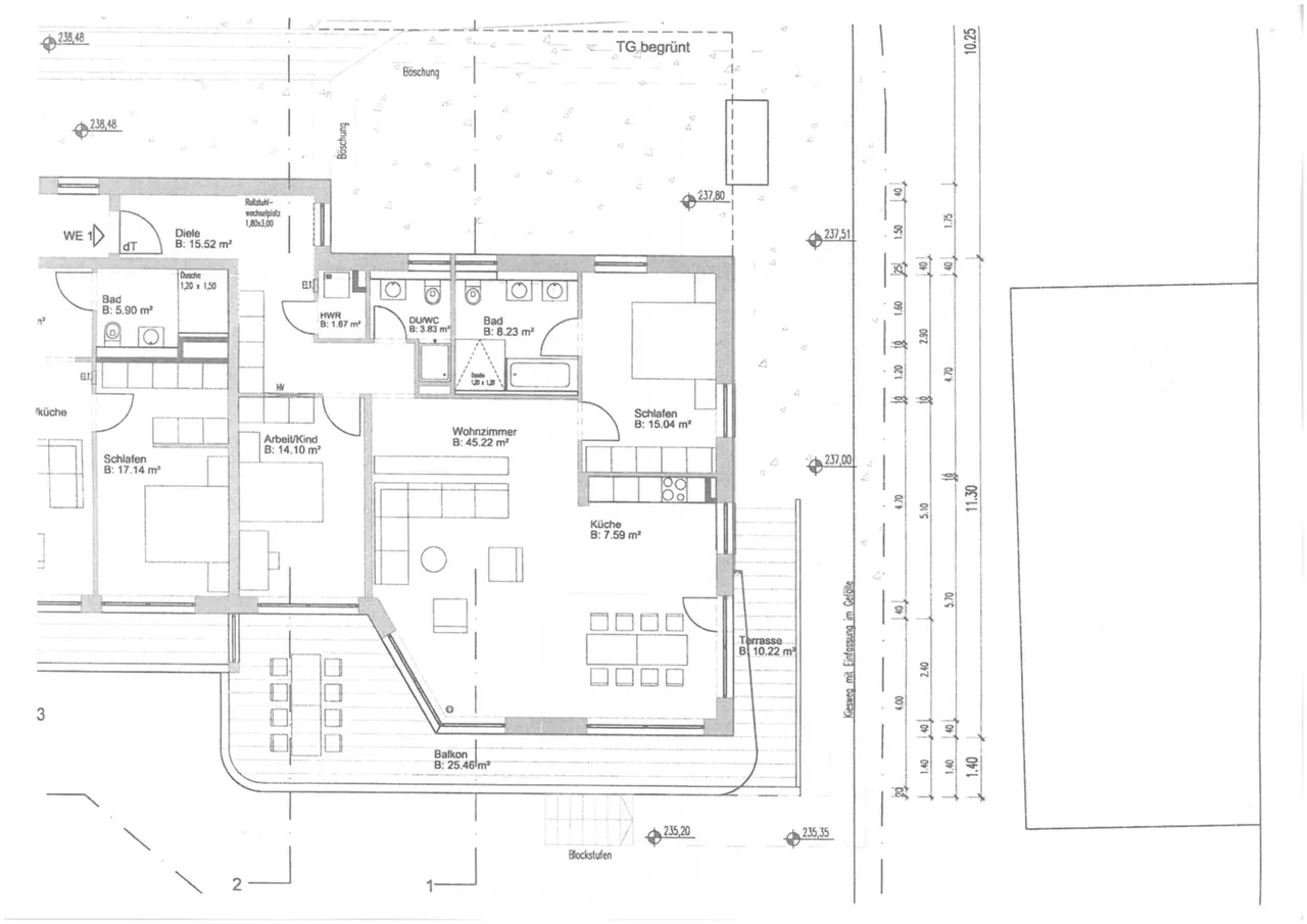
WILLKOMMEN in Ihrer neuen Traumwohnung in Marbach a. N.! Diese exquisite, neuwertige Etagenwohnung im Erstbezug bietet auf ca. 124 m² Wohnfl: ein stilvolles und modernes Wohnambiente. Die Immobilie aus dem Baujahr 2024 befindet sich in einem 8-Familienhaus und besticht durch hochwertige Ausstattung und barrierefreiem Raumkonzept. Ein Aufzug führt von der Tiefgarage direkt bis zur Wohnung, so können Sie bequem Ihre Einkäufe usw. transportieren.

Beim Betreten der Wohnung gelangen Sie in die einladende Diele, die Ihnen Zugang zu allen Räumen bietet. Der großzügige Livingroom mit ca. 45 m² vereint Wohnen, Essen und Kochen in einer offenen Raumgestaltung und verfügt über vier Zugänge zu einem großzügigen L-förmigen Terrassen-Balkon, in Süd- und Ostausrichtung. Genießen Sie hier die herrliche Aus- und Fernsicht. Die ostseitige Terrasse mündet direkt in den gemeinschaftlichen Garten.

Die Wohnung bietet 2 Schlafzimmer, darunter ein Hauptschlafzimmer mit direktem Zugang zum Tageslichtbad. Ein weiteres Zimmer steht Ihnen als Kinder-, Gästezimmer oder Büro zur Verfügung und bietet ebenfalls Zugang zur Terrasse.

Ein zusätzliches Tageslicht-Gäste-WC mit Dusche und Waschbecken steht bereit, um den Komfort Ihrer Gäste sicherzustellen. Der Hauswirtschaftsraum mit Waschmaschinenanschluss bietet zusätzliche Funktionalität.

Hochwertige Materialien und moderne Technik finden sich in der gesamten Wohnung wieder. Die ca. 250 cm hohen Decken, weiße Türen, Kunststofffenster mit elektrischen Rollläden und edle Parkettböden schaffen eine elegante Atmosphäre. Die Wohnung ist mit einer energieeffizienten Wärmepumpenheizung samt Fußbodenheizung ausgestattet, ergänzt durch eine Photovoltaikanlage für die Wärmepumpe und den Allgemeinstrom.

Das Angebot wird ergänzt durch einen TG-Stellplatz mit Sektionaltor für 29.000 € sowie ein Außenstellplatz für 15.000 €.

Zur gemeinschaftl. Nutzung stehen Ihnen ein großzügig gestalteter Garten, ein Trockenraum und ein Fahrradstellplatz zur Verfügung.

Sonstiges

WICHTIG*WICHTIG*WICHTIG*WICHTIG*WICHTIG

Alle Angaben sind ohne Gewähr und basieren ausschließlich auf Informationen, die uns von unserem Auftraggeber zur Verfügung gestellt wurden. Wir übernehmen keine Gewähr für die Vollständigkeit, Richtigkeit und Aktualität dieser Angaben. Für die Richtigkeit der Grundrisse wird keine Gewähr übernommen.

Käuferprovision: 2,38 % Käuferprovision inkl. MwSt., verdient und fällig mit Beurkundung des notariellen Kaufvertrages. Der Immobilienmakler hat einen provisionspflichtigen Maklervertrag mit dem Verkäufer in gleicher Höhe abgeschlossen. Die Grunderwerbsteuer, Notar- und Grundbuchkosten sind vom Käufer zu tragen.

Einhaltung Geldwäschegesetz:
Identifikationspflicht von Immobilienkunden durch unsere Immobilienmakler
Alle Immobilienmakler sind verpflichtet, beim Kauf oder Verkauf einer Immobilie die gesetzlichen Vorgaben des Geldwäschegesetzes einzuhalten und die Identität des Immobilienkunden festzustellen, daher bitten wir Sie um Ihre Mithilfe.

Das Geldwäschegesetz soll verhindern, dass Unternehmen für Geldwäsche oder Terrorismusfinanzierung missbraucht werden. Das heißt, das Einschleusen illegal erwirtschafteter Vermögenswerte in den legalen Wirtschaftskreislauf und die damit einhergehende Verschleierung der wahren Herkunft des Geldes soll dadurch unterbunden werden.

Bitte beachten Sie: Laut Geldwäschegesetz (GWG) §4, sind wir dazu verpflichtet, bereits bei der Besichtigung einer Immobilie die Identität des Interessenten anhand eines gültigen Personalausweises zu prüfen und festzuhalten. Die Legitimationsdaten werden von uns ausschließlich im Rahmen der Geldwäscheprävention erhoben, verarbeitet und genutzt. Nach Ablauf der Aufbewahrungsdauer werden die Daten gelöscht.

Wir bitten Sie daher, zu Besichtigungs- oder Beratungsterminen immer Ihren gültigen Ausweis mitzubringen. Vielen Dank für Ihr Verständnis und Ihre tatkräftige Unterstützung in dieser Sache.

Ausstattungsbeschreibung

Hochwertige, moderne und barrierefreie 3-ZIMMER-EG-WOHNUNG im 8-Familienhaus (KFW-Haus 55) mit Aufzug,
ERSTBEZUG!

WOHNUNG ca. 124 m² bestehend aus:

DIELE

LIVINGROOM ca. 45 m² Wohnen / Essen / Kochen
mit 4 Zugängen zum großzügigen L-förmigen Terrassen-Balkon (Süd- Ostseite)
mit Aus- und Fernsicht
Die ostseitige Terrasse hat einen direkten Zugang zum gemeinschaftlichen Garten

SCHLAFZIMMER mit Zugang zum Bad

TAGESLICHTBAD, 2 Waschbecken, Badewanne, bodentiefe Dusche, WC

KINDER-, GÄSTEZIMMER oder BÜRO mit Zugang zur Terrasse

TAGESLICHT-GÄSTE-BAD mit Waschbecken, WC und Dusche

HAUSWIRTSCHAFTSRAUM mit Waschmaschinenanschluss

DECKENHÖHE: Ca. 250 cm

TÜREN: Weiß
FENSTER/ROLLÄDEN: Kunststofffenster mit elektrische Rollläden
HEIZUNG: Wärmepumpe, Fußbodenheizung
BÖDEN: Hochwertiges Eichenparkett_Bad, Gäste-Bad und Küchenbereich mit Fliesen
WÄNDE: Malervlies, weiße Ausführung
Photovoltaikanlage für die Wärmepumpe und den Allgemeinstrom
Glasfaseranschluss

Aufzug von der Tiefgarage bis vor die Wohnung

Zur Wohnung gehört noch ein ABSTELLRAUM im UG von ca. 11 m² (Nutzfläche)

TIEFGARAGENSTELLPLATZ (29.000 €), Hofeinfahrt + Sektionaltor der Tiefgarage zu öffnen über die Fernbedienung
AUSSENSTELLPLATZ (15.000.- €)

Zur GEMEINSCHAFTLICHEN NUTZUNG gehören:
GARTEN, großzügige, individuelle Gestaltung
TROCKENRAUM
FAHRRADABSTELLPLATZ für insgesamt 14 Fahrräder

Die Bilder im Exposé sind teilweise mit beispielhafter Einrichtung abgebildet

NUTZEN SIE DIE GELEGENHEIT DER UNVERBINDLICHEN BESICHTIGUNG!
WIR FREUEN UNS AUF SIE!

Lagebeschreibung

Diese charmante Etagenwohnung befindet sich in einer äußerst begehrten und ruhigen Wohngegend von Marbach am Neckar. Die Stadt, gelegen in der malerischen Region des Landkreises Ludwigsburg, ist bekannt für ihre historische Altstadt und ihre literarische Bedeutung als Geburtsort des berühmten Dichters Friedrich Schiller.

Die Lage der Wohnung bietet eine perfekte Mischung aus Ruhe und guter Anbindung. Innerhalb weniger Minuten erreichen Sie das lebendige Stadtzentrum, das mit einer Vielzahl an Einkaufsmöglichkeiten, Restaurants und kulturellen Einrichtungen lockt. Für Naturliebhaber bietet die unmittelbare Umgebung schöne Spazierwege und grüne Erholungsflächen entlang des Neckarufers, die zu entspannten Ausflügen und Aktivitäten im Freien einladen.

Die Verkehrsanbindung ist ebenfalls hervorragend. Der Bahnhof von Marbach am Neckar ist fußläufig in ca. 4 Minuten erreichbar und bietet regelmäßige Zugverbindungen nach Ludwigsburg und Stuttgart, während die nahegelegenen Autobahnen eine schnelle Erreichbarkeit der weiteren Region sicherstellen. Familien schätzen zudem die Nähe zu Schulen und Kindergärten, die alle gut erreichbar sind.

Diese Lage verbindet auf einzigartige Weise die Vorzüge des Stadtlebens mit den Annehmlichkeiten einer ruhigen und naturnahen Umgebung. Ein idealer Wohnort für all jene, die ein harmonisches Lebensumfeld suchen.

Käuferprovision

2,38 % des Kaufpreises inkl. ges. MwSt. Bezugsgröße ist der notariell beurkundete Kaufpreis.

Ausstattung

Gesamtfläche ca. 135 m²
Zimmer 3
Anzahl Badezimmer 2
Anzahl Balkone 1
Anzahl Etagen 3
Anzahl Stellplätze 1
Anzahl Terrassen 1
Baujahr 2024
Befeuerungsart Luft/Wasser-Wärmepumpe
Heizungsart Zentralheizung
Tiefgaragenstellplätze 1
Stellplatzpreis (Tiefgarage) 29.000 €
Unterkellert
verfügbar ab Nach Kaufabwicklung
Verkaufstatus offen
Zustand Erstbezug

Energiebedarfsausweis

Endenergiebedarf 20,10 kWh/(m²*a)
Befeuerungsart Luft/Wasser-Wärmepumpe
Heizungsart Zentralheizung
Wesentlicher Energieträger LUFTWP
Baujahr (Energieausweis) 2024
Energieeffizienzklasse A+
Gültig bis 10.03.2034
Energieausweis 2014

0200400+


Objekt-Nr. 2854Ma2_GB_Haus_Verk – Wohnung zum Kauf in Marbach am Neckar

Zurück zu den Immobilienangeboten

Erfolg! Vielen Dank für Ihre Bewertung.

Fehler! Bitte füllen Sie alle Felder aus.