Helle 3,5-Zimmer-EG-Wohnung mit Balkon und neuer Einbauküche in Korntal-Münchingen

Objekt-Nr. 3023_KM_BP_K – Wohnung zum Kauf in Korntal-Münchingen


Ansprechpartner

Benjamin Puric

Telefon: 004915569036427
Telefax: 07042 12152

puric@immobilienservice-maier.com

Kontakt aufnehmen

Eckdaten

Kaufpreis 298.000 €
Hausgeld 367 €
Adresse 70825 Korntal-Münchingen
Wohnfläche ca. 88,17 m²
Zimmer 3,50

Beschreibung

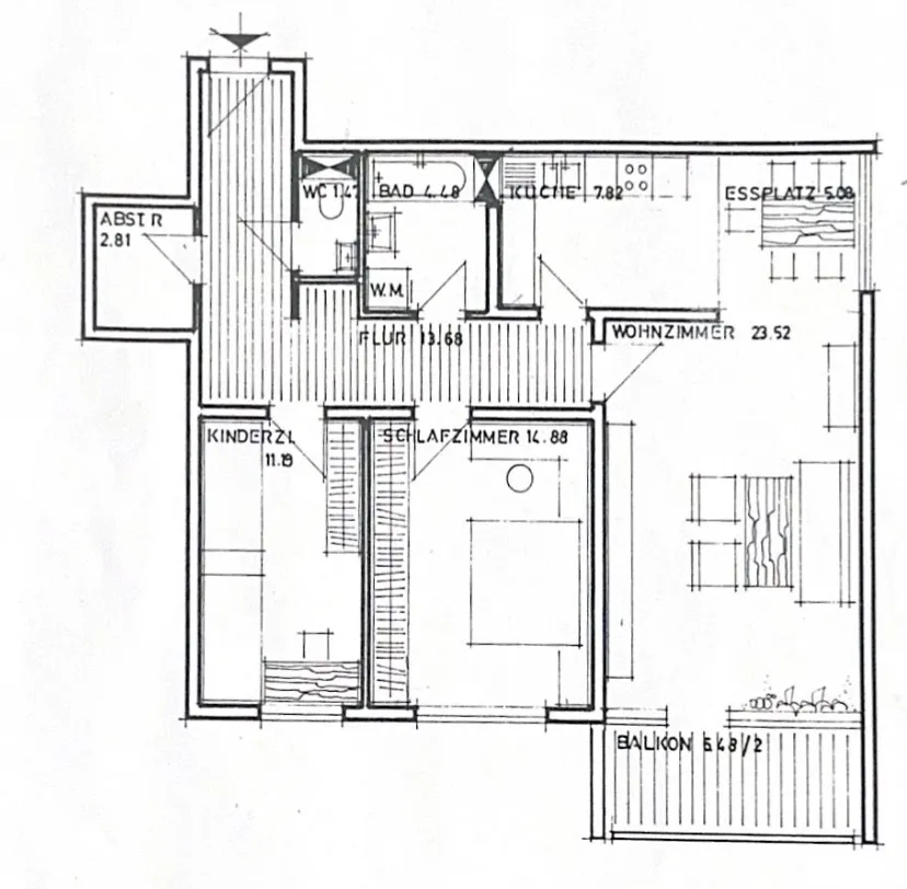
Willkommen in Ihrem neuen Zuhause in Korntal-Münchingen. Diese gepflegte Erdgeschosswohnung aus dem Baujahr 1972 überzeugt durch ihre großzügige Wohnfläche von ca. 88 m², eine durchdachte Raumaufteilung sowie ein angenehmes Wohnambiente. Die Immobilie eignet sich sowohl für Eigennutzer als auch für Kapitalanleger.

Die Wohnung verfügt über insgesamt 3,5 Zimmer und besticht durch helle, lichtdurchflutete Räume. Der großzügige Wohn- und Essbereich bildet das Herzstück der Wohnung und bietet vielfältige Gestaltungsmöglichkeiten. Von hier aus gelangen Sie auf den Balkon, der den Wohnraum ins Freie erweitert und zu entspannten Stunden einlädt.

Zwei gut geschnittene Schlafzimmer bieten ausreichend Platz für Familie, Homeoffice oder Gäste. Die moderne Einbauküche wurde im Jahr 2024 neu installiert und fügt sich harmonisch in das Gesamtbild der Wohnung ein. Sie überzeugt durch Funktionalität und zeitgemäßes Design.

Das Badezimmer sowie das separate WC wurden 2015 umfassend renoviert und befinden sich in einem sehr gepflegten Zustand. In den Wohnräumen ist hochwertiger Parkettboden verlegt, der den wertigen Gesamteindruck der Wohnung unterstreicht.

Zur Wohnung gehört ein eigener Kellerraum, der zusätzlichen Stauraum bietet. Ergänzend kann ein Carport für 15.000 € erworben werden. Das monatliche Hausgeld beträgt 367,00 € und beinhaltet unter anderem die Leistungen eines Hausmeisterservices. Das gesamte Wohnhaus präsentiert sich in einem sehr gepflegten Zustand und wird regelmäßig instand gehalten.

Sonstiges

WICHTIG*WICHTIG*WICHTIG*WICHTIG*WICHTIG

Alle Angaben sind ohne Gewähr und basieren ausschließlich auf Informationen, die uns von unserem Auftraggeber zur Verfügung gestellt wurden. Wir übernehmen keine Gewähr für die Vollständigkeit, Richtigkeit und Aktualität dieser Angaben. Für die Richtigkeit der Grundrisse wird keine Gewähr übernommen.


Einhaltung Geldwäschegesetz:

Identifikationspflicht von Immobilienkunden durch unsere Immobilienmakler
Alle Immobilienmakler sind verpflichtet, beim Kauf oder Verkauf einer Immobilie die gesetzlichen Vorgaben des Geldwäschegesetzes einzuhalten und die Identität des Immobilienkunden festzustellen, daher bitten wir Sie um Ihre Mithilfe.
Das Geldwäschegesetz soll verhindern, dass Unternehmen für Geldwäsche oder Terrorismusfinanzierung missbraucht werden. Das heißt, das Einschleusen illegal erwirtschafteter Vermögenswerte in den legalen Wirtschaftskreislauf und die damit einhergehende Verschleierung der wahren Herkunft des Geldes soll dadurch unterbunden werden.

Bitte beachten Sie: Laut Geldwäschegesetz (GWG) §4, sind wir dazu verpflichtet, bereits bei der Besichtigung einer Immobilie die Identität des Interessenten anhand eines gültigen Personalausweises zu prüfen und festzuhalten. Die Legitimationsdaten werden von uns ausschließlich im Rahmen der Geldwäscheprävention erhoben, verarbeitet und genutzt. Nach Ablauf der Aufbewahrungsdauer werden die Daten gelöscht.

Wir bitten Sie daher, zu Besichtigungs- oder Beratungsterminen immer Ihren gültigen Ausweis mitzubringen.

Vielen Dank für Ihr Verständnis und Ihre tatkräftige Unterstützung in dieser Sache.

Ausstattungsbeschreibung

-Flur (Parkettboden)
-Essbereich (Parkettboden)
-Wohnzimmer (Parkettboden)
-Schlafzimmer (Parkettboden)
-Bad (Fliesenboden mit Wanne, Waschbecken und WC)
-Gäste-WC (Fliesenboden mit Waschbecken und WC)

Zur Wohnung gehört ein Kellerraum. Waschküche und Trockenraum sind vorhanden.

Carport-Stellplatz (15.000,- €)

Lagebeschreibung

Die Wohnung befindet sich in ruhiger und zugleich zentraler Lage von Korntal-Münchingen. Die hervorragende Infrastruktur sowie die unmittelbare Nähe zur Landeshauptstadt Stuttgart ermöglichen eine schnelle Erreichbarkeit sowohl mit dem Auto als auch mit öffentlichen Verkehrsmitteln. Einkaufsmöglichkeiten, Schulen, Kindergärten sowie vielfältige Freizeit- und Erholungsangebote sind in der direkten Umgebung vorhanden. Gepflegte Grünanlagen und die gelungene Verbindung von städtischem Leben und ländlicher Ruhe schaffen ein angenehmes Wohnumfeld mit hoher Lebensqualität.

Käuferprovision

3,57 % des Kaufpreises inkl. ges. MwSt. Bezugsgröße ist der notariell beurkundete Kaufpreis.

Ausstattung

Anzahl Badezimmer 1
Anzahl Balkone 1
Anzahl Etagen 7
Anzahl Schlafzimmer 2
Anzahl separate WCs 1
Anzahl Stellplätze 1
Baujahr 1972
Befeuerungsart Öl
Fahrstuhl Personen
Heizungsart Zentralheizung
Kabel/Sat-TV
Carportplätze 1
Stellplatzpreis (Carport) 15.000 €
Unterkellert
verfügbar ab ab sofort
Verkaufstatus offen

Energieverbrauchsausweis

Endenergieverbrauch 99 kWh/(m²*a)
Befeuerungsart Öl
Heizungsart Zentralheizung
Wesentlicher Energieträger OEL
Energieeffizienzklasse C
Gültig bis 12.09.2028

0200400+


Objekt-Nr. 3023_KM_BP_K – Wohnung zum Kauf in Korntal-Münchingen

Zurück zu den Immobilienangeboten

Erfolg! Vielen Dank für Ihre Bewertung.

Fehler! Bitte füllen Sie alle Felder aus.